-
13 2018/12
全新系列|置身暖林,感受陽光下樹木的氣息——“柏林棕木”
每天生活在都市里的人們,在夜深人靜,疲憊不堪時,總會想要回歸大自然,感受原始的自由。不再被世俗的欲望所束縛,不再擔心手機沒電,網絡不好。而是真真切切地去享受呼吸,去觸摸細膩的葉脈,粗糙的樹皮,清澈的溪流......
-
12 2018/12
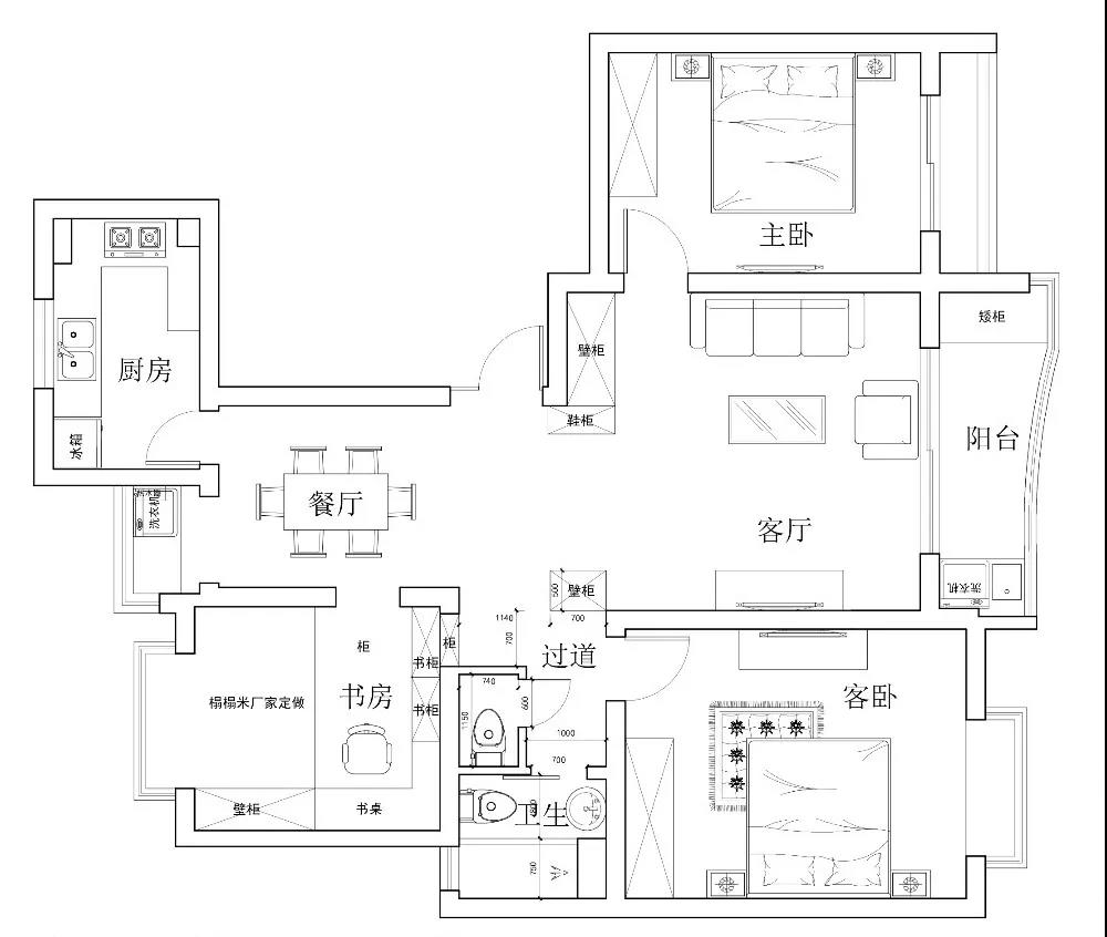
最美我家”案例|愛家亞洲花園小區——能夠自由設計,才是真的全屋定制!
雖然是經人介紹,但張女士第一次在紅星美凱龍看到拉迷時,就感受到她與拉迷的契合度超過她的預期。再加上那位朋友對拉迷贊不絕口,這樣張女士很是心動,決定試一試。
-
11 2018/12
終篇敲響!2018年最后一期衣柜設計師培訓班圓滿結束了!
2018年12月2日,拉迷2018年第四期衣柜設計師集訓營迎來最后一集——畢業。
